MG Immobiliare di Marco Grosso
3887339600
Casa singola in vendita a Capriva del Friuli
Capriva del Friuli
Zona: - VIA ZORUTTI
€ 109.000
#117 mq
#5
#3

Casa singola in vendita a Capriva del Friuli Capriva del Friuli - VIA ZORUTTI

Descrizione
Cod. 445

Questo immobile è stato bloccato dalla proposta di acquisto vincolante di un altro cliente.

Attualmente siamo in attesa di perfezionare la pratica. Se dovesse tornare sul mercato lo troverai sui nostri canali come "disponibile".


A Capriva del Friuli, a due passi dal centro del Paese, si vende una Villa singola da ristrutturare completamente.

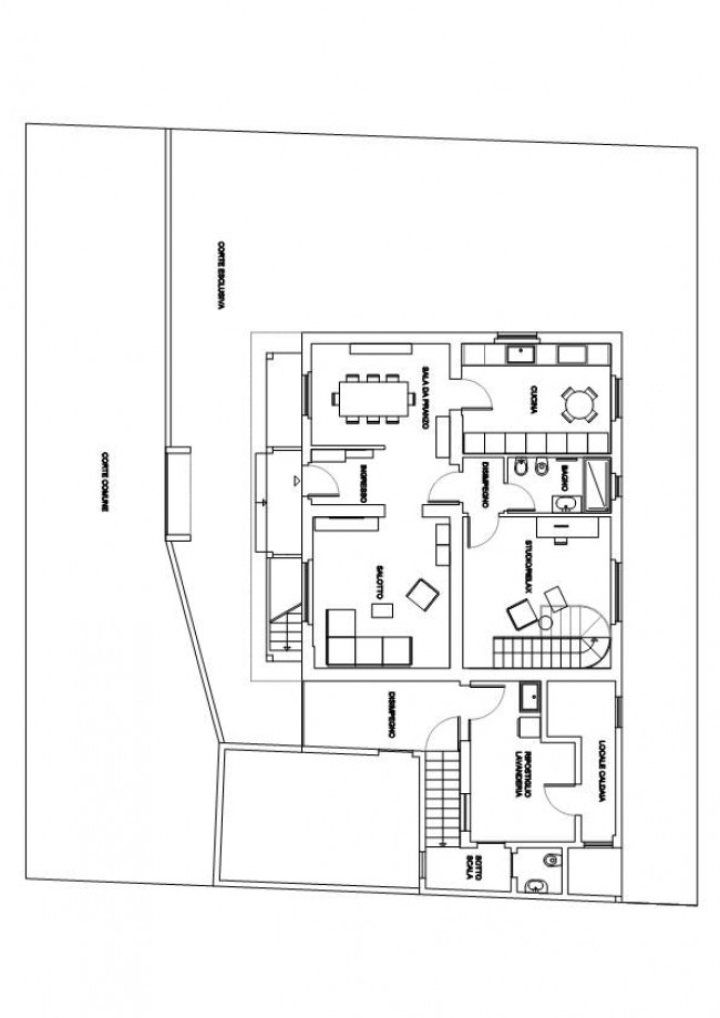
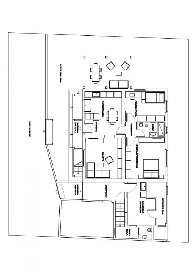
Al piano terra: ingresso, cucina separata abitabile, soggiorno, due ampie camere matrimoniali, antibagno e bagno.

Sempre al piano terra in un corpo separato, un piccolo magazzino, il locale caldaia e il secondo bagno.

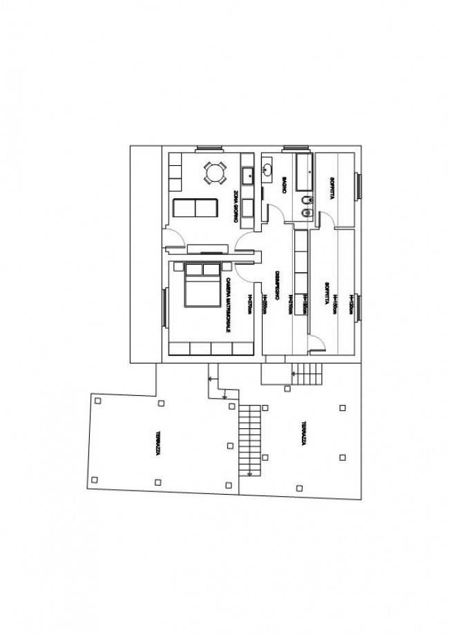
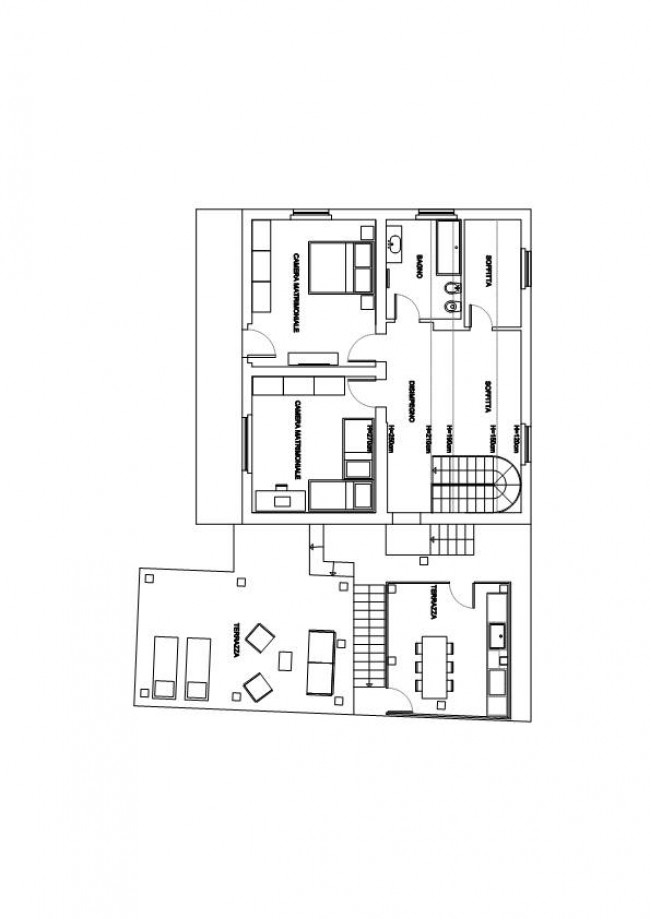
Al piano primo troviamo la soffitta divisa in tre grandi stanze ed il terzo bagno.

Completa la proprietà un incantevole terrazza abitabile di quasi 30 mq, il garage di 16 mq e un grande terreno di circa 2.000 mq.

Un'occasione incredibile, per chi desidera sfruttare tutti gli incentivi per la ristrutturazione e le migliorie energetiche.

Incredibile vista aperta sul verde della natura incontaminata, ma vicino a tutte le principali vie di comunicazione.

Nelle immagini sono mostrati i render e le planimetrie, che illustrano le possibili soluzioni per la ristrutturazione dell'immobile.


Contattaci per avere tutte le informazioni di cui hai bisogno.

Ufficio Immobiliare Grosso
Direzione
Cell. 388 7339600
Marco Grosso
Cell. 347 7266507
Lorena Persoglia
Cell. 389 3486777
Email. info@immobiliaregrosso.it
www.immobiliaregrosso.it

L'Agenzia Immobiliare Grosso, grazie all'esperienza e alle specifiche competenze del titolare e dei suoi collaboratori, ti accompagnerà nel percorso di compravendita del tuo immobile. Proverai l'impagabile tranquillità di essere seguito in ogni passo, sapendo che sarai affiancato fino al rogito, e anche dopo se richiesto.
Stai pensando di vendere casa? Chiamaci! Valuteremo insieme la strada giusta da percorrere in base alle tue esigenze.

FOTO @GIOMIDA

Classe energetica: G
€ 109.000
Caratteristiche
Scopri le caratteristiche di questo immobile
Nelle vicinanze
Servizi e infrastrutture della zona
Ubicazione immobile
Contattaci


Ultimo aggiornamento 03/04/2026
×
Codice
Contratto
Scegli dove cercare
Tipologia - multiscelta
Prezzo


Totale mq


Locali minimi
Bagni minimi
Camere minime
Altre opzioni - multiscelta